Ontdek dit schitterende nieuwbouw appartement, perfect gelegen in het idyllische Mar de Cristal. Met het strand op slechts 500 meter loopafstand biedt dit de ultieme combinatie van modern wooncomfort en een ontspannen leven aan de Spaanse kust. Dit gloednieuwe appartement staat garant voor hedendaags design, hoogwaardige afwerking en optimale energiezuinigheid, wat zorgt voor een zorgeloos en comfortabel verblijf in deze mooie kustplaats aan de Costa Cálida.
APPARTEMENT
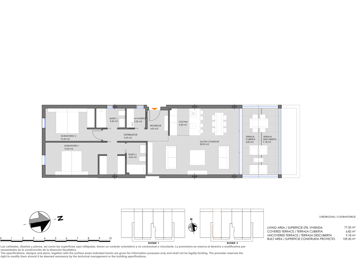
Spaanse DroomCasa presenteert u met trots dit appartement met twee slaapkamers en twee complete badkamers. De woonkamer springt direct in het oog dankzij de plafondhoge ramen. Deze zorgen niet alleen voor een overweldigende natuurlijke lichtinval, maar creëren ook een heerlijk ruimtelijk effect en een bijzonder aangename, lichte sfeer.
De open keuken sluit naadloos aan op de woonkamer en is uitgerust met modern witgoed. Het pronkstuk is het stijlvolle spoel- en kookeiland, dat tevens perfect dienstdoet als gezellige eetbar.
Beide badkamers zijn met oog voor detail en luxe afgewerkt. De hoofdslaapkamer heeft een badkamer en-suite, wat garant staand voor ultieme privacy en comfort. Het appartement is voorzien van een pre-installatie voor airconditioning. Voor uw gemak parkeert u uw auto veilig op uw privé parkeerplaats in de ondergrondse parkeergarage.
U heeft de unieke mogelijkheid om te kiezen uit verschillende indelingen. Of u nu verkiest om te wonen in een gelijkvloerse woning met een prachtige tuin of in een tussenverdieping met een gedeeltelijk overdekt terras, uw perfecte woning staat voor u klaar!
RESIDENTIE
Deze exclusieve residentie biedt meer dan alleen uw eigen appartement. Als bewoner geniet u van een prachtig aangelegde gemeenschappelijke tuin, een oase van groen en rust, compleet met een verfrissend zwembad en een royale ligweide. De perfecte plek om te ontspannen en te socialiseren, alles op korte afstand van uw droomwoning.
OMGEVING VAN UW APPARTEMENT
Mar de Cristal is een charmant klein kustdorpje, idyllisch gelegen ten zuiden van de Mar Menor. Deze bestemming is bijzonder geliefd om haar exceptioneel kalme en ondiepe wateren, wat het tot een perfecte locatie maakt om te zwemmen of het beoefenen van diverse watersporten. Het dorp zelf biedt een scala aan voorzieningen die bijdragen aan een comfortabel verblijf. U vindt er een moderne jachthaven, handige lokale winkels, supermarkten voor uw dagelijkse boodschappen en een sfeervolle boulevard met gezellige restaurants, waar u heerlijk kunt dineren met uitzicht op zee.
De omgeving van Mar de Cristal is bovendien rijk aan bezienswaardigheden en activiteiten. Op korte rijafstand liggen het authentieke vissersdorp Cabo de Palos, wereldwijd bekend om zijn uitmuntende duikmogelijkheden en iconische vuurtoren en het levendige en meer toeristische La Manga. Voor natuurliefhebbers en sportievelingen liggen het prachtige natuurpark Calblanque en de exclusieve golfclub La Manga Club op slechts vijf minuten rijden. Kortom, Mar de Cristal en haar directe omgeving bieden de perfecte mix van rust, ontspanning, activiteit en authenticiteit. Dit wordt gegarandeerd genieten!
BESCHIKBAARHEID/OPLEVERING
De prijs van uw appartement is afhankelijk van de grootte en uitvoering. Er zijn ook hoekappartementen met drie slaapkamers beschikbaar. De oplevering staat gepland voor zomer 2026.
Heeft u nog vragen of droomt u ervan deze prachtige woning te bezichtigen? Aarzel niet om contact met ons op te nemen via info@spaansedroomcasa.nl of +34 744615086, ook via WhatsApp.
DISCLAIMER
De teksten, impressies en foto’s zijn bedoeld om u een goede indruk te geven van de woning. Aan de inhoud hiervan is de grootst mogelijke zorg besteed. Desondanks is alle informatie onder voorbehoud. Hieraan kunnen geen rechten worden ontleend.