Ontdek het toppunt van luxe wonen in dit schitterende herenhuis, gelegen in de prestigieuze en weelderige omgeving van Sierra Cortina in Finestrat. Op slechts een steenworp afstand van een breed scala aan voorzieningen en minder dan vijf minuten rijden van de azuurblauwe Middellandse Zee, biedt deze woning de perfecte balans tussen rust, comfort en bereikbaarheid.
Stap vanuit uw lichte en luchtige woonkamer direct uw privé terras en aangelegde tuin in, compleet met een efficiënt irrigatiesysteem, perfect voor ontspanning in de zon of buiten dineren. De moderne open keuken, een esthetische combinatie van strak wit en verfijnd zwart marmer, is uitgerust met eersteklas geïntegreerde apparatuur, waaronder een plafondafzuigkap, inductiekookplaat, koelkast, vaatwasser en oven, wat koken tot een waar genot maakt.
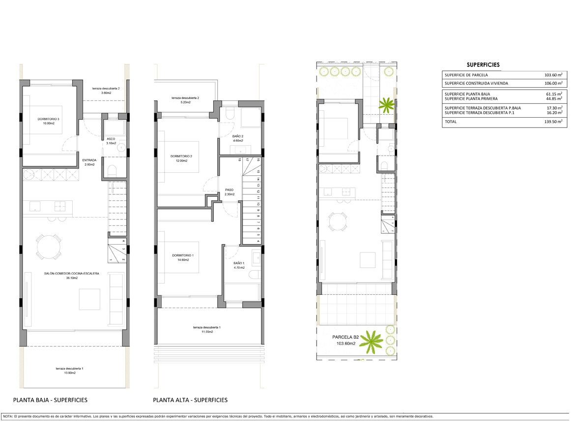
Op de begane grond vindt u een comfortabele slaapkamer en een elegant ingerichte luxe badkamer. De eerste verdieping herbergt de twee overige slaapkamers, elk met een eigen luxe badkamer en-suite, wat zorgt voor privacy en comfort. Beide slaapkamers bieden toegang tot een privé terras met adembenemende vergezichten. De luxe badkamers zijn van alle gemakken voorzien, met zwevende toiletten, ruime inloopdouches, stijlvolle badmeubels, spiegels en sfeervolle LED-verlichting.
Dit herenhuis is ontworpen met het oog op duurzaamheid en comfort, met een pre-installatie voor airconditioning met verwarmingsfunctie en efficiënte zonnepanelen. Geavanceerde domotica en moderne LED-verlichting dragen bij aan een intuïtieve en energiezuinige leefomgeving. Uw auto kan veilig worden geparkeerd op uw eigen privé parkeerplaats binnen de afgesloten residentie.
RESIDENTIE
De residentie bestaat uit slechts 11 herenhuizen. De gemeenschappelijke tuin is voorzien van riant zwembad met kinderzwembad, omringd door ligweides. Er is ook een kinderspeelplaats aanwezig.
OMGEVING VAN UW HERENHUIS
Uw herenhuis ligt dicht bij alle faciliteiten zoals golfbanen, pret- en waterparken, dierentuin, spa en restaurants. U kunt wandelen naar de toppen van de berg Puig Campana of in het natuurpark Sierra Gelada. Op enkele minuten rijden ligt het winkelcentrum La Marina en binnen tien minuten rijden ligt u op het mooie strand van La Cala. Bij het winkelcentrum La Marina is een tramhalte, deze brengt u naar Benidorm, Alicante of Dénia. U bent tevens in vijf minuten rijden op de snelweg waar u in slechts 40 minuten naar het vliegveld van Alicante rijdt.
BESCHIKBAARHEID/OPLEVERING
De prijs van uw herenhuis hangt af van de ligging en grootte van het perceel, deze is maximaal 312 m². De bouw van uw herenhuis start na ondertekening van het koopcontract en duurt 24 maanden.
Heeft u nog vragen of droomt u ervan deze prachtige woning te bezichtigen? Aarzel niet om contact met ons op te nemen via info@spaansedroomcasa.nl of +34 744615086, ook via WhatsApp.
DISCLAIMER
De teksten en impressies zijn bedoeld om u een goede indruk te geven van de woning. Aan de inhoud hiervan is de grootst mogelijke zorg besteed. Desondanks is alle informatie onder voorbehoud. Hieraan kunnen geen rechten worden ontleend.