Penthouse op Roda Golf
- Vanaf €349.000
Omschrijving
Riant penthouse op Roda Golf and Beach Resort in Roda. Op loopafstand van de golfbaan, dicht bij het strand, winkels en de badplaats Los Alcázares. Een heerlijke plek om te verblijven met veel buitenruimte.
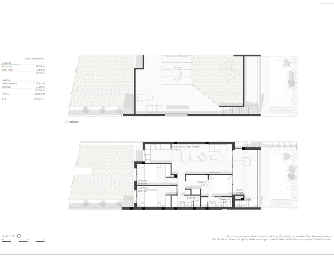
VIERKAMER PENTHOUSE
Spaanse DroomCasa presenteert u dit penthouse met drie slaapkamers, twee badkamers, terras plus zonnig privé solarium. De woonkamer beschikt over prachtige lichtval door het vele glas waardoor u een mooi uitzicht heeft. De L-vormige open keuken is voorzien van witgoed: keramische kookplaat, afzuigkap, oven, magnetron, vaatwasser en koelkast. Er is een aparte ruimte aanwezig inclusief wasmachine. Verder is er een berging aanwezig op het terras grenzend aan de woonkamer. De hoofdslaapkamer met badkamer en-suite grenst ook aan het woonkamer terras. De overige twee slaapkamers en badkamers liggen aan de andere zijde van het penthouse. Beide badkamers zijn luxe en voorzien van inloopdouche, badmeubel met spiegel, toilet en een glazen douchescherm.
Vanaf uw terras heeft u via een trap toegang tot uw zonnig privé solarium met fantastisch uitzicht op de omgeving en de golfbaan. Op uw solarium is een buitenkeuken aanwezig met koelkast.
Uw penthouse is verder voorzien van pre-installatie voor de airconditioning, elektrisch bedienbare shutters en moderne LED-verlichting, zowel binnen als buiten.
RESIDENTIE
De residentie beschikt over een gemeenschappelijk tuin die prachtig is aangelegd met Mediterrane planten en bomen. In de tuin is een heerlijk zwembad aanwezig exclusief voor de bewoners van de residentie. De golfbaan ligt in de directe omgeving, slechts enkele minuten lopen.
RODA GOLF & BEACH RESORT
Roda Golf & Beach Resort kenmerkt zich door de Mediterrane tuinen die prachtig begroeid zijn met palmbomen en andere subtropische planten. U loopt in 15 minuten naar Los Alcázaras waar u heerlijke restaurants vindt, leuke bars met terrasjes, winkels, supermarkten en natuurlijk het strand. Neem een duik in het heerlijke water van de Mar Menor. Wilt u op het resort blijven dan kunt een hapje en drankje nemen in het Clubhuis Restaurant. Er zijn ook een gym en padelbanen aanwezig. U kunt een heerlijk dagje shoppen in het enorme winkelcentrum La Zenia Boulevard in de Orihuela Costa of het overdekt winkelcentrum Dos Mares in Santiago de la Ribera. Roda Golf & Beach resort is voorzien van 24/7 beveiliging en toegangscontrole.
BESCHIKBAAR/OPLEVERING
In de residentie worden 36 appartementen en penthouses gerealiseerd. De prijs van uw penthouse hangt af van de grootte en de ligging. Er zijn ook begane grond appartementen met tuin beschikbaar. De oplevering staat gepland voor maart of september 2027.
Heeft u nog vragen of droomt u ervan deze prachtige woning te bezichtigen? Aarzel niet om contact met ons op te nemen via info@spaansedroomcasa.nl of +34 744615086, ook via WhatsApp.
DISCLAIMER
De teksten, foto’s en impressies zijn bedoeld om u een goede indruk te geven van deze woning. Aan de inhoud hiervan is de grootst mogelijke zorg besteed. Desondanks is alle informatie onder voorbehoud. Hieraan kunnen geen rechten worden ontleend.
Locatie van de woning
Bekijk in Google MapsDetails
- Woning referentie CCRR-3001
- Prijs Vanaf €349.000
- Woonoppervlakte 209,6 m²
- Slaapkamers 3
- Badkamers 2
- Bouwjaar 2027
- Woningtype Penthouse
Aanvullende details
- Verdieping 1ᵉ etage
- Terras 19,8 m²
- Solarium 97,2 m²
- Afstand naar zee 10 minuten
- Afstand naar de golfbaan 2 minuten lopen
- Afstand naar Alicante Airport 55 minuten
- Afstand naar Murcia Airport 30 minuten
- Energielabel In aanvraag
- Woningstatus In aanbouw
Hypotheek berekenen
- Aanbetaling
- Hypotheek bedrag
- Maandelijks hypotheek betaling
Vergelijkbare woningen
Penthouse in Dolores
Costa Blanca Zuid, SpanjePenthouse in San Cayetano
Costa Cálida, SpanjePenthouse in Águilas
Costa Cálida, SpanjePenthouse in Torrevieja
Costa Blanca Zuid, Spanje
- Eric Vlasman

















