Vrijstaande duplex villa in San Pedro del Pinatar
- Vanaf €435.000
- Vanaf €435.000
Omschrijving
Deze schitterende villa in San Pedro del Pinatar is de ideale uitvalsbasis voor een perfect verblijf aan de Spaanse kust. Uw woning ligt op loopafstand van het sfeervolle centrum en slechts tien minuten rijden van de zonovergoten stranden. Deze badplaats en haar omgeving bieden een overvloed aan recreatiemogelijkheden en voorzieningen.
VILLA
Spaanse DroomCasa presenteert met trots deze luxueuze, op het zuiden gelegen villa die een perfecte harmonie van moderne elegantie en comfort biedt. Met drie ruime slaapkamers en twee weelderige badkamers, is deze woning ontworpen voor een leven van verfijning en ontspanning. De strategische ligging op het zuiden garandeert een overvloed aan natuurlijk licht, terwijl de privé terrassen uitnodigen tot het buitenleven. Een sprankelend privé zwembad, compleet met sfeervolle buitenverlichting en een verfrissende buitendouche, vormt het middelpunt van uw persoonlijke oase.
De architectuur is een kunstwerk op zich, waar elegant wit stucwerk naadloos overvloeit in het robuuste karakter van een accentmuur in natuursteen. Deze harmonieuze combinatie creëert een buitenkant die zowel luxe als moderniteit uitstraalt, en u verwelkomt in een wereld van verfijning.
Het ware pronkstuk van deze villa is de connectie met de buitenwereld. Grote glazen schuifdeuren in de woonkamer vloeien moeiteloos over in een uitgestrekt terras, waar het kristalheldere privé zwembad uitnodigt tot ontspanning en verfrissing. Dit creëert een sfeer van openheid en zorgt voor een constante stroom van natuurlijk licht. De open keuken, uitgerust met hoogwaardig witgoed en een stijlvol kookeiland, vormt het hart van het huis en is perfect voor culinaire creaties en gezellig samenzijn.
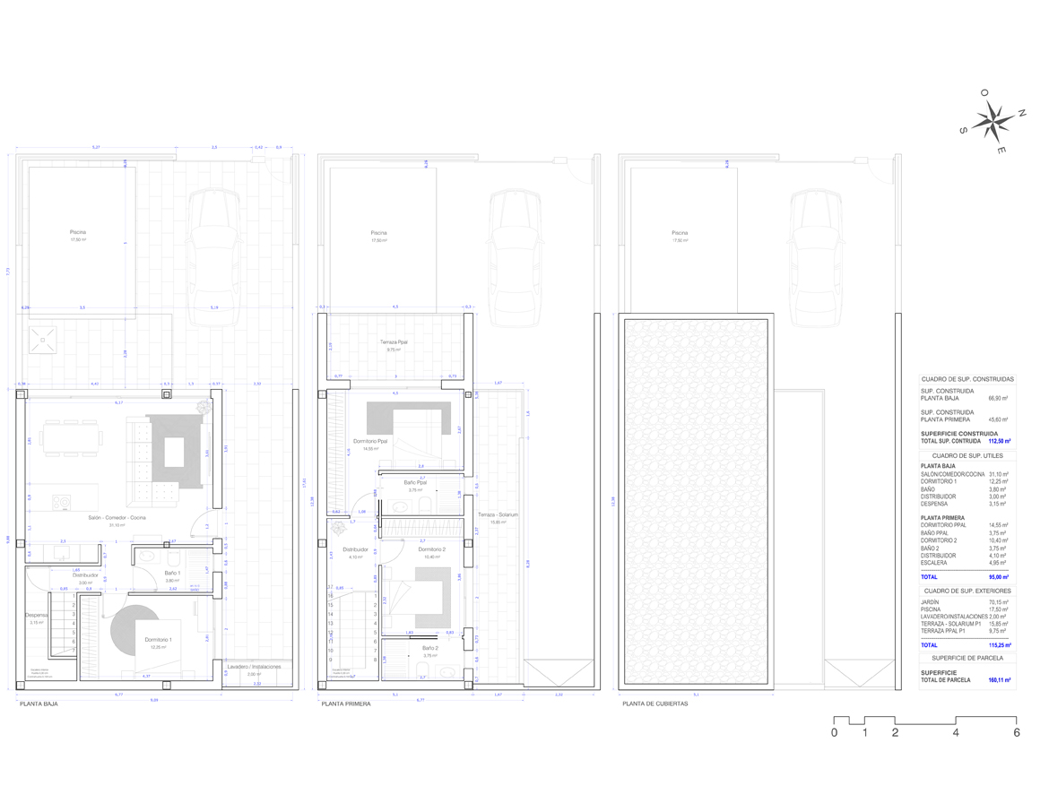
Op de begane grond vindt u een comfortabele slaapkamer en een luxueus afgewerkte badkamer, wat zorgt voor toegankelijkheid en extra gemak. De eerste verdieping herbergt twee slaapkamers en de tweede badkamer. De hoofdslaapkamer heeft een inloopkast. Vanuit beide slaapkamers heeft u directe toegang tot het terras, waar u een prachtig uitzicht heeft over de verzorgde tuin en het uitnodigende zwembad.
Alle badkamers zijn ontworpen met oog voor detail en comfort, voorzien van een inloopdouche, elegant badmeubel met bijpassende spiegel en een toilet.
Deze villa voorzien van pre-installatie voor airconditioning. U heeft de optie om een solarium aan te leggen, waar u kunt genieten van de zon en het uitzicht. Uw auto kunt u op uw eigen perceel parkeren.
OMGEVING VAN UW VILLA
Uw villa bevindt zich op een werkelijk fantastische locatie, die het beste van zowel ontspanning als levendigheid combineert. Binnen slechts tien minuten rijden bereikt u de verfrissende stranden van San Pedro del Pinatar, waar u kunt genieten van zon, zee en strand. Tegelijkertijd ligt het bruisende centrum van de stad op loopafstand, wat u gemakkelijke toegang biedt tot een breed scala aan winkels, gezellige restaurants en essentiële supermarkten.
Voor natuurliefhebbers is de nabijheid van het natuurpark Las Salinas y Arenales de San Pedro een absolute troef. In slechts zeven minuten rijden bent u in dit uitgestrekte natuurgebied van 856 hectare. Hier kunt u heerlijk wandelen over aangelegde paden, de kenmerkende zoutmeren bewonderen, de helende modderbaden ervaren en genieten van een indrukwekkende kuststrook van maar liefst zes kilometer lang. De diversiteit aan flora en fauna, samen met de unieke zoutlandschappen, maken dit een onvergetelijke bestemming.
Daarnaast zijn de grotere winkelcentra en meer levendige toeristische gebieden ook binnen handbereik. Het populaire winkelcentrum La Zenia Boulevard en het nabijgelegen, drukkere Orihuela Costa zijn beide te bereiken in slechts tien minuten rijden, wat u eindeloze mogelijkheden biedt voor entertainment, winkelen en dineren. Deze centrale ligging zorgt ervoor dat u het beste van de regio moeiteloos kunt ervaren.
BESCHIKBAARHEID
De prijs van uw villa hangt af van de ligging en de grootte van het perceel. De oplevering is in het najaar 2027.
Heeft u nog vragen of droomt u ervan deze prachtige woning te bezichtigen? Aarzel niet om contact met ons op te nemen via info@spaansedroomcasa.nl of +34 744615086, ook via WhatsApp.
DISCLAIMER
De teksten en impressies zijn bedoeld om u een goede indruk te geven van deze woning. Aan de inhoud hiervan is de grootst mogelijke zorg besteed. Desondanks is alle informatie onder voorbehoud. Hieraan kunnen geen rechten worden ontleend.
Locatie van de woning
Bekijk in Google MapsDetails
- Woning referentie CCRH-4001
- Prijs Vanaf €435.000
- Woonoppervlakte 112,5 m²
- Perceel maximaal 228,3 m²
- Slaapkamers 3
- Badkamers 2
- Parkeerplaats 1
- Bouwjaar 2027
- Woningtype Vrijstaande villa
Aanvullende details
- Tuin 70,1 m²
- Terrassen 1ᵉ verdieping 25,6 m²
- Zwembad vanaf 17,5 m²
- Afstand naar zee 10 minuten
- Afstand naar Alicante Airport 55 minuten
- Afstand naar Murcia Airport 35 minuten
- Energielabel In aanvraag
- Woningstatus In aanbouw
Hypotheek berekenen
- Aanbetaling
- Hypotheek bedrag
- Maandelijks hypotheek betaling
Vergelijkbare woningen
Vrijstaande duplex villa op La Finca Golf
Costa Blanca Zuid, SpanjeVrijstaande villa in Balsicas
Costa Cálida, SpanjeVrijstaande duplex villa in Finestrat
Costa Blanca Noord, SpanjeVrijstaande villa op La Finca Golf
Costa Blanca Zuid, Spanje
- Eric Vlasman
















