Schakelvilla op La Finca Golf
- Vanaf €473.000
- Vanaf €473.000
Omschrijving
Geschakelde villa in de urbanisatie van La Finca Golf. U woont hier rustig in een zeer kleine residentie, terwijl u elke dag geniet van het prachtige uitzicht op groene omgeving, omringd door bergen. Deze villa is op loopafstand van heerlijke restaurants en gezellige terrassen.
SCHAKELVILLA
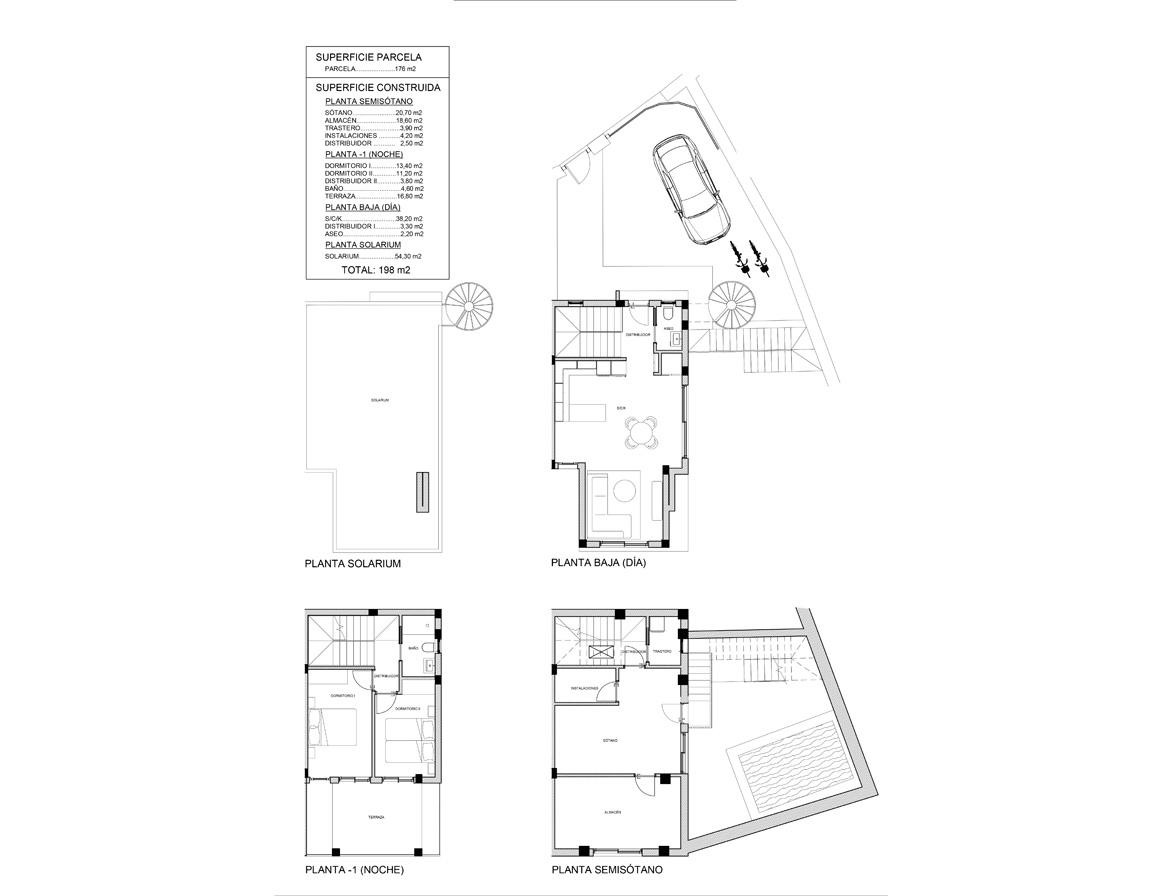
Spaanse DroomCasa presenteert u deze schakelvilla met twee slaapkamers, een souterrain met slaapruimte, één comfortabele badkamer en een zwembad. De woonkamer loopt naadloos over in de u-vormige open keuken met spoeleiland, welke ook als eetbar kan worden gebruikt. De luxe keuken is uitgevoerd in lichtgrijs gecombineerd met wit marmer. Hoogwaardig witgoed is standaard aanwezig: koel-vries combinatie, magnetron, inductie kookplaat, plafond afzuigkap, oven en vaatwasser. Ook is uw keuken voorzien van moderne LED-verlichting. Op deze woonverdieping is een apart gastentoilet aanwezig. Via een buitentrap heeft u toegang tot uw zonnige en riante solarium, waar u fantastisch uitzicht heeft over de omgeving, de golfbaan en op de bergen.
Een verdieping lager bevinden zich de twee slaapkamers en de luxe badkamer. De slaapkamers hebben toegang tot een terras met mooi uitzicht. De badkamer is compleet uitgevoerd en voorzien van LED-verlichting, vloerverwarming, een inloopdouche met regendouche, wastafel met badmeubel plus spiegel met LED-verlichting en toilet.
Uw schakelvilla is voorzien van een souterrain met aparte berging. In het souterrain kunt u al uw droomwensen realiseren zoals een kantoor, bar, fitness en/of gastenverblijf. Op deze verdieping heeft u toegang tot de tuin met terras, zwembad en buitendouche.
De schakelvilla is tevens voorzien van pre-installatie voor airconditioning, welke ook kan verwarmen en moderne LED-verlichting, zowel binnen als buiten. Op de woonverdieping is een parkeerplaats aanwezig voor uw auto.
OMGEVING VILLA
Uw schakelvilla ligt in de urbanisatie La Finca Golf, een prachtige omgeving gelegen in de plaats Algorfa, ten zuiden van Alicante. U bent omgeven door veel groen, bergen en de 18-holes golfbaan. Op loopafstand kunt u zich laten verwennen door de Mediterrane gastronomie bij de vele restaurants met gezellige terrassen. Zij bieden de heerlijkste delicatessen die zee en land te bieden hebben. Er zijn ook een supermarkt en andere lokale winkels op loopafstand. Daarnaast heeft La Finca Golf een 5-sterren hotel, een spa en vele sportfaciliteiten. De steden Quesada en Benijófar liggen op korte afstand. Voor oneindig winkelen kunt u terecht in het winkelcentrum La Zenia Boulevard, op slechts 20 minuten rijden. Liever een dagje naar het strand? In 20 minuten rijdt u naar de Middellandse Zee en geniet op het goudgele strand van Guardamar de Segura of Torrevieja, La Mata.
OPLEVERING / BESCHIKBAARHEID
De prijs van uw villa hangt af van de ligging en grootte perceel. Uw villa is sleutelklaar.
Heeft u nog vragen of droomt u ervan deze prachtige woning te bezichtigen? Aarzel niet om contact met ons op te nemen via info@spaansedroomcasa.nl of +34 744615086, ook via WhatsApp.
DISCLAIMER
De teksten, foto’s en impressies zijn bedoeld om u een goede indruk te geven van deze woning. Aan de inhoud hiervan is de grootst mogelijke zorg besteed. Desondanks is alle informatie onder voorbehoud. Hieraan kunnen geen rechten worden ontleend.
Locatie van de woning
Bekijk in Google MapsDetails
- Woning referentie CZIM-4003
- Prijs Vanaf €473.000
- Woonoppervlakte 198 m²
- Perceel 176 m²
- Slaapkamers 3
- Badkamer 1
- Parkeerplaats 1
- Bouwjaar 2025
- Woningtype Schakelvilla
Aanvullende details
- Zwembad 10 m²
- Terras slaapkamers 17 m²
- Solarium 54 m²
- Souterrain 50 m²
- Afstand naar zee 20 minuten
- Afstand naar Alicante Airport 30 minuten
- Energielabel Sleuteklaar
- Woningstatus In aanbouw
Hypotheek berekenen
- Aanbetaling
- Hypotheek bedrag
- Maandelijks hypotheek betaling
Vergelijkbare woningen
Schakelvilla in Dolores
Costa Blanca Zuid, SpanjeSchakelvilla in Dolores
Costa Blanca Zuid, SpanjeDuplex schakelvilla in Pulpí
Costa de Almería, SpanjeSchakelvilla in Santiago de la Ribera
Costa Cálida, Spanje
- Michel Latuharhary









